
Lokace: Dolní Chlum, ČR
Investor: soukromý
Velikost: 90 m²
Vizualizace: Lumion 8.5
Obraz na zdi: Matyáš Prošek
[:en]Location: Dolní Chlum, CZ
Investor: private
Area: 90 m²
Visualisations: Lumion 8.5
Painting on the wall: Matyáš Prošek
[:]Martina, Marek a Josefína si chtějí na Křivoklátsku vedle stávající maringotky postavit chatu. Místo je to krásný a ta chata nebude ledajaká…
[:en]Martina, Marek and Josefína want to build a cottage in the Křivoklát region next to the currently present caravan. The place is beautiful and the cottage won't be like any other...
[:]

„Hele čau, koupíme starou halu a tu chatu postavíme z ní, jo?“
Přemluvit budoucí majitele do konceptu, který nás napadl někdy u třetího piva v naší oblíbené restauraci, nebylo těžké a odpověď byla jednoznačná jak rána kladivem do hlavy. Řekli „Ano!“ a tak se rozjelo pátrání po vhodné adeptce, která by velikostně i tvarově odpovídala našim požadavkům. Po několika týdnech se na zahradě, tedy budoucí stavební parcele, objevila konstrukce, ze které chatu postavíme.
[:en]"Hey, let's make that cabin from an old factory structure, okay?"
It wasn't difficult to talk future owners into a concept that crossed our minds while having a third beer in our favorite restaurant, and the answer was clear as day. They said "Yes!" And so the search for a structure, which would meet our requirements of size and shape, began. After a few weeks, a suitable structure appeared in the garden, which is also the future building plot, from which we could build the cottage.
[:]


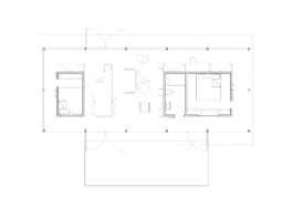
Zatím vypadá jako hromada šrotu, ale to se brzy změní. Halu o rozměrech 15 x 6 metrů necháme opravit a natřít na tyrkysovou. Pak ji osadíme na nově vybudovaný betonový základ. O střechu se postarají prefabrikované sendvičové panely a obvodové stěny zasklíme. Vznikne tak velký obytný prostor, který doplníme dvěma ložnicovými boxy, které zajistí obyvatelům chaty soukromí pro klidný spánek. Na boxy se dá vylézt. Horní plocha slouží jako spaní pro kamarády, nebo babičku s dědou, až přijedou pohlídat mládě. Před skleněnými plochami oken osadíme síť na popínavé kytky, které zajistí, aby se v létě z interiéru nestal skleník.
[:en]So far, it looks like a pile of scrap iron, but that will change soon. We will have the structure measuring 15 x 6 meters repaired and painted turquoise. Then we will install it on a newly built concrete foundation. Prefabricated panels will be layed on the roof and the perimeter walls will be glazed. This will create a large, open living space, where two bedroom boxes will be added in order to provide privacy for the inhabitants of the cabin. The boxes can be climbed, so the upper area serves as beds for guests, especially for friends or for grandparents coming to look after the kiddo. In front of the glass surface, we are adding a net for vine plants ensuring that the interior doesn't turn into a greenhouse in the summer.
[:]


Centrem obytného prostoru se stane kuchyně s obývákem, kde si budou majitelé užívat skvělého výhledu a sluníčka. Martina si bude číst u okna, pít kafe a pozorovat Máru s Josefínou, jak na zahradě něco kutí. Pokud teda Mára nebude zrovna skládat ty největší hudební fláky v přilehlé maringotce, která by měla na zahradě zůstat i po dokončení chaty.
[:en]The center of the living space will be a kitchen with living room, where the owners can enjoy great view and sunshine. Martina will read a book by the window, drink coffee and watch Mára and Josefína pottering around in the garden. But only if Mára won't be just composing the greatest musical pieces in the nearby caravan that should remain in the garden even after the cabin is completed.
[:]



Zahrada se upraví tak, aby nedala moc práce a poskytovala dostatečný prostor na večerní vopejkačky buřtů, hraní na kytaru a jiný skopičiny, který se na čerstvym křivoklátskym vzduchu nabízej. No a my se těšíme na kolaudační párty!
[:en]The garden will be low-maintenance, while providing enough space for evening campfire and other typical activities that can be performed under the open sky above Křivoklát. Well, we are looking forward to the housewarming party!
[:]

Zpět nahoru
[:en]Back to top
[:]
Lokace: Dolní Chlum, ČR
Investor: soukromý
Velikost: 90 m²
Vizualizace: Lumion 8.5
Obraz na zdi: Matyáš Prošek
[:en]Location: Dolní Chlum, CZ
Investor: private
Area: 90 m²
Visualisations: Lumion 8.5
Painting on the wall: Matyáš Prošek
[:]Martina, Marek a Josefína si chtějí na Křivoklátsku vedle stávající maringotky postavit chatu. Místo je to krásný a ta chata nebude ledajaká…
[:en]Martina, Marek and Josefína want to build a cottage in the Křivoklát region next to the currently present caravan. The place is beautiful and the cottage won't be like any other...
[:]
„Hele čau, koupíme starou halu a tu chatu postavíme z ní, jo?“
Přemluvit budoucí majitele do konceptu, který nás napadl někdy u třetího piva v naší oblíbené restauraci, nebylo těžké a odpověď byla jednoznačná jak rána kladivem do hlavy. Řekli „Ano!“ a tak se rozjelo pátrání po vhodné adeptce, která by velikostně i tvarově odpovídala našim požadavkům. Po několika týdnech se na zahradě, tedy budoucí stavební parcele, objevila konstrukce, ze které chatu postavíme.
[:en]"Hey, let's make that cabin from an old factory structure, okay?"
It wasn't difficult to talk future owners into a concept that crossed our minds while having a third beer in our favorite restaurant, and the answer was clear as day. They said "Yes!" And so the search for a structure, which would meet our requirements of size and shape, began. After a few weeks, a suitable structure appeared in the garden, which is also the future building plot, from which we could build the cottage.
[:]
Zatím vypadá jako hromada šrotu, ale to se brzy změní. Halu o rozměrech 15 x 6 metrů necháme opravit a natřít na tyrkysovou. Pak ji osadíme na nově vybudovaný betonový základ. O střechu se postarají prefabrikované sendvičové panely a obvodové stěny zasklíme. Vznikne tak velký obytný prostor, který doplníme dvěma ložnicovými boxy, které zajistí obyvatelům chaty soukromí pro klidný spánek. Na boxy se dá vylézt. Horní plocha slouží jako spaní pro kamarády, nebo babičku s dědou, až přijedou pohlídat mládě. Před skleněnými plochami oken osadíme síť na popínavé kytky, které zajistí, aby se v létě z interiéru nestal skleník.
[:en]So far, it looks like a pile of scrap iron, but that will change soon. We will have the structure measuring 15 x 6 meters repaired and painted turquoise. Then we will install it on a newly built concrete foundation. Prefabricated panels will be layed on the roof and the perimeter walls will be glazed. This will create a large, open living space, where two bedroom boxes will be added in order to provide privacy for the inhabitants of the cabin. The boxes can be climbed, so the upper area serves as beds for guests, especially for friends or for grandparents coming to look after the kiddo. In front of the glass surface, we are adding a net for vine plants ensuring that the interior doesn't turn into a greenhouse in the summer.
[:]


Centrem obytného prostoru se stane kuchyně s obývákem, kde si budou majitelé užívat skvělého výhledu a sluníčka. Martina si bude číst u okna, pít kafe a pozorovat Máru s Josefínou, jak na zahradě něco kutí. Pokud teda Mára nebude zrovna skládat ty největší hudební fláky v přilehlé maringotce, která by měla na zahradě zůstat i po dokončení chaty.
[:en]The center of the living space will be a kitchen with living room, where the owners can enjoy great view and sunshine. Martina will read a book by the window, drink coffee and watch Mára and Josefína pottering around in the garden. But only if Mára won't be just composing the greatest musical pieces in the nearby caravan that should remain in the garden even after the cabin is completed.
[:]

Zahrada se upraví tak, aby nedala moc práce a poskytovala dostatečný prostor na večerní vopejkačky buřtů, hraní na kytaru a jiný skopičiny, který se na čerstvym křivoklátskym vzduchu nabízej. No a my se těšíme na kolaudační párty!
[:en]The garden will be low-maintenance, while providing enough space for evening campfire and other typical activities that can be performed under the open sky above Křivoklát. Well, we are looking forward to the housewarming party!
[:]






Zpět nahoru
[:en]Back to top
[:]